🔥 Po této nemovitosti je vysoká poptávka!

Prodej bytu 3+1 70 m² | Rezlerova | Praha - Petrovice

Rezlerova 281/58, Praha-Petrovice, Česko

3+1

70

Virtuální prohlídka k dispozici

Popis nemovitosti

Byt s dispozicí 3+1, lodžií a otevřeným výhledem, který dává smysl jak pro rodinné bydlení, tak jako dlouhodobá investice.

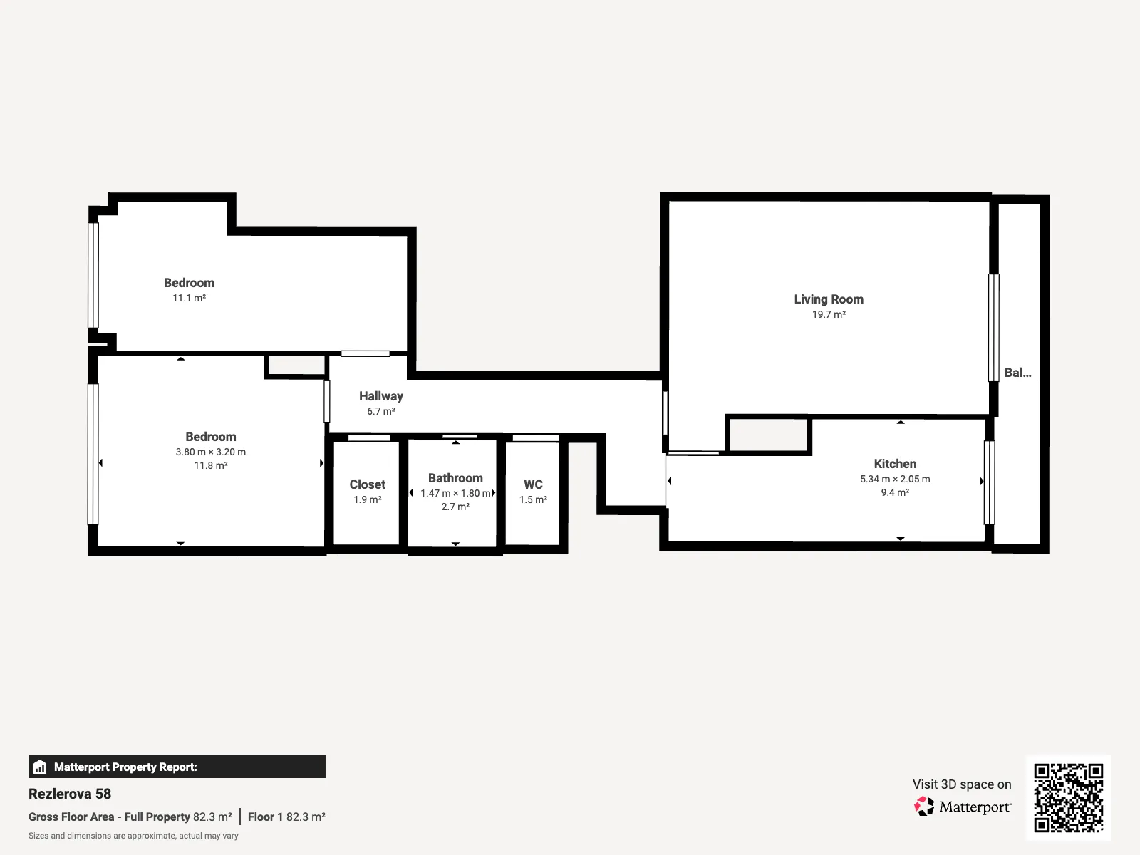
Nabízíme k prodeji bytovou jednotku o podlahové ploše 70,82 m², která se nachází v 6. patře (7. nadzemní podlaží) panelového domu na adrese Rezlerova 58, Praha - Petrovice.

K bytu náleží lodžie o velikosti 6,96 m² a sklepní kóje cca 2,5 m² - tyto plochy nejsou započteny do podlahové plochy bytu.

Byt prošel částečnou rekonstrukcí kolem roku 2015, kdy byla realizována kuchyňská linka a koupelna. Jinak je v původním a velice dobře udržovaném původním stavu.

Dispozice

  • obývací pokoj ( 19,72 m²) se vstupem na lodžii
  • samostatná kuchyně (10.98 m²)
  • ložnice (12.2 m²)
  • pokoj (13.16 m²)
  • předsíň / chodba (10.88 m²)
  • koupelna (2.98 m²)
  • samostatné WC (0,9 m²)

Dispozice 3+1 nabízí praktické oddělení jednotlivých místností, dostatek úložného prostoru a zároveň variabilitu - ať už pro rodinu, nebo pro případný pronájem.

Vybavení a technické údaje

Byt je ve stavu, který umožňuje okamžité bydlení bez nutnosti zásadních investic, ale zároveň nechává prostor pro modernizaci.

  • koupelna a WC po rekonstrukci (cca 2015)
  • kuchyňská linka (cca 2014–2015)
  • vaření na plynu
  • centrální vytápění
  • původní elektroinstalace s dílčími úpravami

Dům je ve velmi dobrém stavu a je na první pohled vidět, že se o něj SVJ dlouhodobě stará.

  • energetická náročnost budovy: třída B
  • zrekonstruované společné prostory
  • světlý a udržovaný vstup do domu
  • prostorná kolárna
  • průběžné investice do domu

Celkově působí dům čistě, udržovaně a funkčně - přesně tak, jak to chcete, když se vracíte domů.

Náklady

  • zálohy SVJ cca 5 800 Kč / měsíc

Byt tak dává smysl jak pro vlastní bydlení, tak jako investice - díky dispozici, lokalitě i dlouhodobě stabilní poptávce po nájemním bydlení.


Jiří Koucký - realitní makléř

Uvedené výměry jsou orientační. V případě více zájemců bude nemovitost prodána nejlepší nabídce a majitel si vyhrazuje právo vybrat kupujícího na základě jím zvolených kritérií. Veškeré zveřejněné údaje mají pouze informativní charakter a nepředstavují nabídku ve smyslu § 1731 nebo § 1732 občanského zákoníku, ani veřejný příslib dle § 1733 občanského zákoníku.


Lodžie s výhledem do zeleně

Kompletní občanská vybavenost v okolí

O lokalitě

Výhody lokality

Petrovice jsou klidná rezidenční lokalita s dostatkem zeleně a kompletní občanskou vybaveností v okolí.

V docházkové vzdálenosti najdete školy, školky, obchody i sportoviště. Zároveň je zde dobrá dostupnost do centra Prahy díky MHD.

V okolí nemovitosti

  • Hostivařská přehrada

  • Westfield Chodov (OC Chodov)

  • Hostivařský lesopark

  • Metro (Háje, Opatov)

  • Kunratický les

Dokumenty ke stažení

8 200 000 Kč vč. právního servisu

Nemovitost je zatím dostupná