🔥 Po této nemovitosti je vysoká poptávka!

Pronájem bytu 2+kk 44 m² | Mečislavova | Praha - Nusle

Mečislavova 181/9, Praha 4 - Nusle, Česko

2+kk

44

Virtuální prohlídka k dispozici

Popis nemovitosti

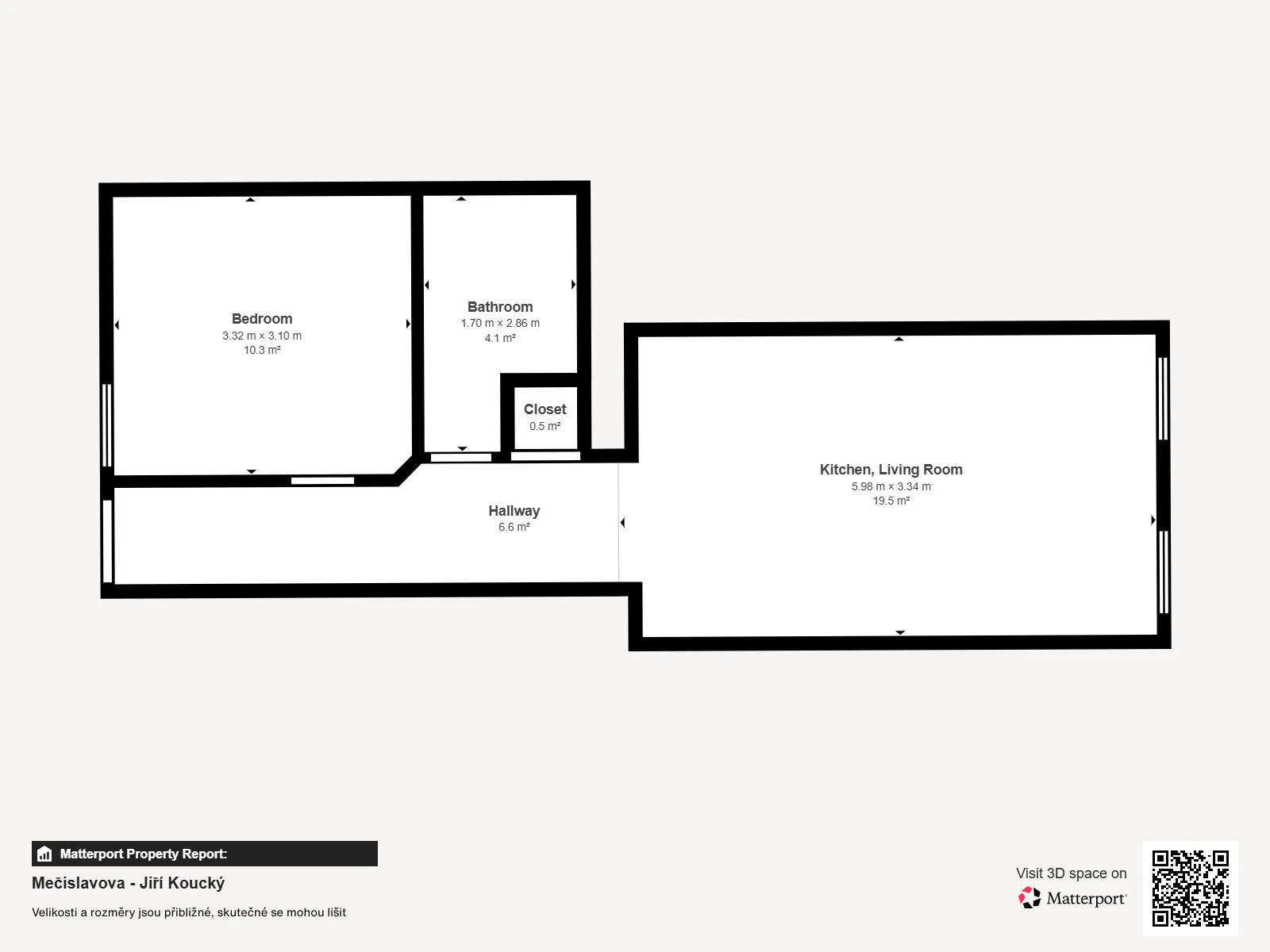
Nabízíme k dlouhodobému podnájmu útulný a velmi klidný byt o dispozici 2+kk o podlahové ploše 44 m², umístěný v 1. patře (2. nadzemní podlaží) bytového domu s výtahem v ulici Mečislavova, Praha 4 - Nusle.

Byt je ideální volbou pro jednotlivce či pár, kteří hledají dlouhodobé bydlení v klidném prostředí s velmi dobrou dostupností do centra Prahy.

Dispozice

  • vstupní předsíň 
  • koupelna s wc 
  • kuchyňský kout
  • komora
  • obývací pokoj
  • ložnice 
  • sklep

Dispozice je funkční a praktická, ideální pro komfortní bydlení.

Vybavení a technické informace

  • byt je nevybavený 
  • kuchyň včetně spotřebičů (trouba, varná deska, lednice)
  • koupelna se sprchovým koutem
  • ložnice s vestavěnou skříní
  • vytápění a ohřev vody je na plyn 
  • elektřina a plyn budou převedeny na nájemníka

Nájemní podmínky a provozní náklady

  • nájemné: 21.500 Kč / měsíc
  • poplatky za domovní služby: 1.000 Kč / měsíc / pro 1 osobu
    (hrazeny nad rámec nájemného)
  • elektřina a plyn budou  převedeny na nájemníka
  • kauce: 35.000 Kč
  • provize: 21.500 + DPH = (vč.DPH 26.015 Kč)


K nastěhování

  • od 1.5.
  • preferován dlouhodobý nájemní vztah

Lokalita je ideální pro každého, kdo chce bydlet v klidu, ale zároveň mít centrum města snadno a rychle dostupné.

Byt je skvělou volbou pro jednotlivce či pár, který hledá dlouhodobé, klidné bydlení.


Jiří Koucký
realitní makléř

Všechny uvedené informace mají pouze orientační charakter a mohou se změnit. Tento inzerát není návrhem na uzavření nájemní smlouvy dle § 1732 občanského zákoníku. Uváděné výměry jsou přibližné. Pronajímatel si vyhrazuje právo upravit podmínky nebo upřednostnit vybraného zájemce.


Klidná rezidenční lokalita – Praha 4, Nusle

Tiché a příjemné bydlení

O lokalitě

Lokalita 

Ulice Mečislavova v Pražských Nuslých nabízí kombinaci klidného bydlení a výborné dopravní dostupnosti:

  • klidná rezidenční ulice v oblíbené části Prahy 4 – Nusle
  • výborná dopravní dostupnost (tramvaje, autobus, vlak – Nádraží Vršovice pár minut chůze)
  • kompletní občanská vybavenost v docházkové vzdálenosti – obchody, restaurace, kavárny, lékárna, pošta
  • v okolí školy, školky i sportoviště (fitness, bazén apod.)
  • blízkost oblíbeného parku Havlíčkovy sady (Grébovka) vhodného pro relax i sport
  • příjemná lokalita s komunitní atmosférou a rostoucí popularitou
  • historická městská čtvrť s charakteristickou zástavbou a živým okolím

V okolí nemovitosti

  • Havlíčkovy sady (Grébovka)

  • OC Arkády Pankrác

  • ZŠ Táborská

Dokumenty ke stažení

21 500 Kč + poplatky za domovní služby + provize

Bydlení je zatím dostupné