🔥 Po této nemovitosti je vysoká poptávka!

Pronájem prostorného bytu 3+kk, 87 m² | Nad Dalejským údolím 9 | Praha 5 – Stodůlky

Nad Dalejským údolím 2699/9, Praha 13 - Stodůlky, Česko

3+kk

87

Virtuální prohlídka k dispozici

Popis nemovitosti

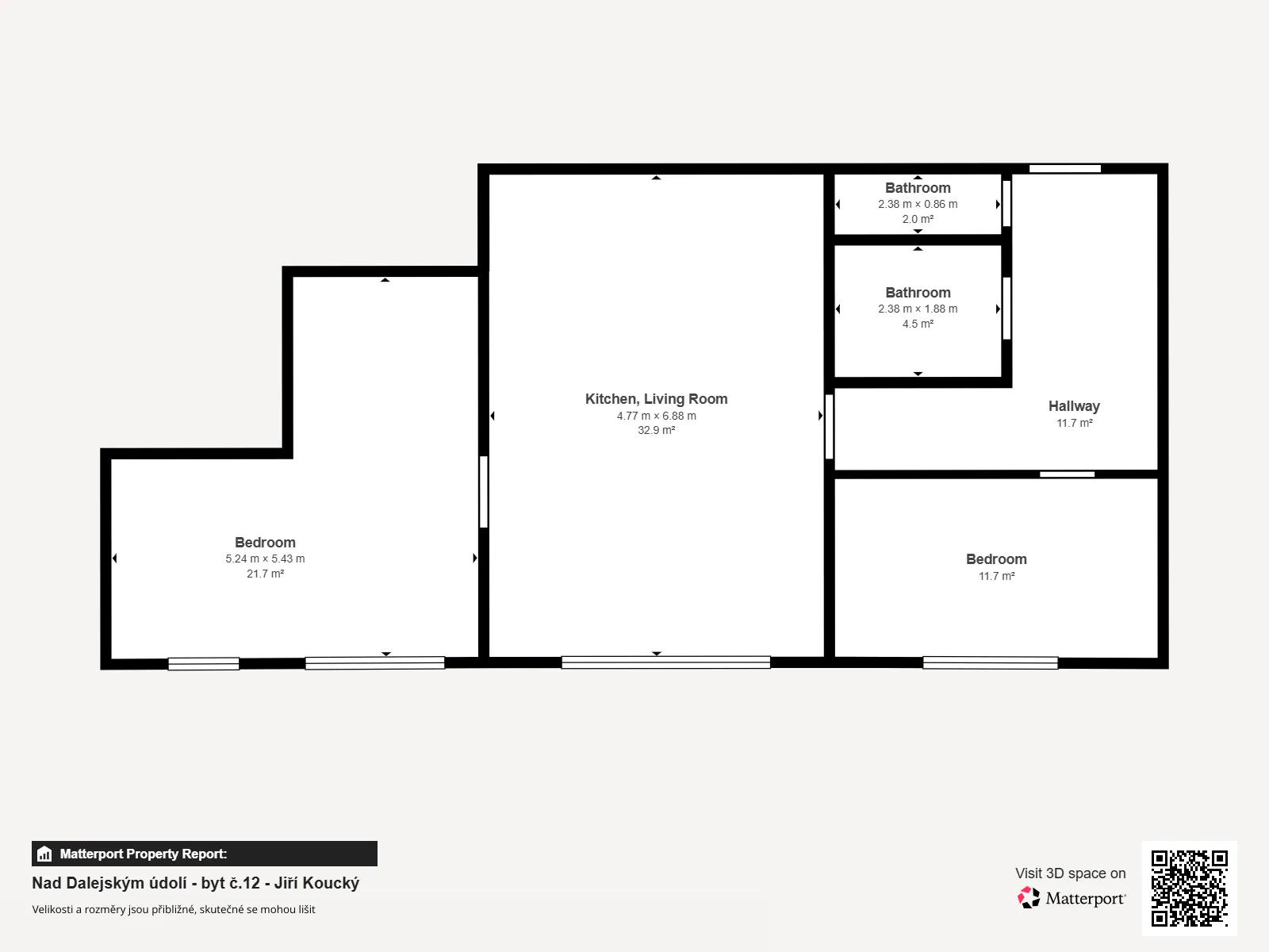
Nabízíme k dlouhodobému pronájmu velkorysý a světlý byt o dispozici 3+kk a celkové podlahové ploše 87 m², umístěný v 1. patře (2. nadzemním podlaží) moderního bytového domu v klidné lokalitě na hraně Prokopského údolí.

Součástí nájmu je garážové stání a sklep v suterénu domu.

Byt je ideální pro rodinu s jedním nebo dvěma dětmi, případně pro náročnější pár, který ocení prostor, soukromí, a klid.

Dispozice

Byt je velmi prakticky a komfortně řešený:

  • prostorná vstupní předsíň
  • obývací pokoj s kuchyňským koutem
  • dvě samostatné ložnice (ložnice + dětský pokoj / pracovna)
  • koupelna s vanou 
  • samostatné WC
  • garážové stání a sklep v suterénu domu

Dispozice nabízí dostatek prostoru, soukromí i komfortu pro rodinné bydlení.

Vybavení a technické informace

  • byt bude nevybavený 
  • kuchyňská linka včetně spotřebičů (trouba, varná deska, myčka)
  • pěkné a udržované povrchy
  • dobrý technický stav bytu i domu
  • vytápění a ohřev vody: centrální
  • orientace na východ
  • moderní, udržovaný dům s podzemními garážemi

Nájemní podmínky a provozní náklady

  • nájemné: 27.900,- Kč / měsíc
  • poplatky za domovní služby: 5.000,- Kč / měsíc / pro 3 osoby
    (hrazeny nad rámec nájemného)
  • elektřina bude převedena na nájemníka
  • kauce: 39.000 Kč (výše kauce může být navýšena v případě domácích mazlíčků)
  • provize: 27.900 Kč bez DPH (celkem 33.759 Kč vč. DPH)

K nastěhování

  • od 15. 2.
  • majitel vlastní více nemovitostí → dlouhodobý a stabilní pronájem
  • preferován dlouhodobý nájemní vztah

Byt je skvělou volbou pro rodinu, která hledá prostor, soukromí, napojení na přírodu, aniž by se musela vzdát komfortu městského bydlení.


Jiří Koucký
realitní makléř

Všechny uvedené informace mají pouze orientační charakter a mohou se změnit. Tento inzerát není návrhem na uzavření nájemní smlouvy dle § 1732 občanského zákoníku. Uváděné výměry jsou přibližné. Pronajímatel si vyhrazuje právo upravit podmínky nebo upřednostnit vybraného zájemce.


O lokalitě

Lokalita – příroda, klid a výborná dostupnost

Jednou z hlavních předností této nabídky je lokalita:

  • přímé napojení na Prokopské údolí – ideální pro rodiny, sport i relax
  • výhled do zahrady a maximální klid
  • cca 8 minut na autobusovou zastávku Velká Ohrada
  • cca 15 minut pěšky na metro B – Luka
  • v okolí kompletní občanská vybavenost - školy, školky, obchody, restaurace, služby, zdravotnická zařízení
  • klidné rezidenční prostředí

V okolí nemovitosti

  • Prokopské údolí – přímo u domu, ideální pro procházky a sport

  • Metro B – cca 15 minut pěšky

  • Autobusová zastávka Velká Ohrada – cca 8 minut chůze

Dokumenty ke stažení

27 900 Kč + poplatky za domovní služby + provize

Bydlení je zatím dostupné