🔥 Po této nemovitosti je vysoká poptávka!

PRONÁJEM ZREKONSTRUOVANÉHO BYTU 3+KK, 67,7 M² | PŘÍMĚTICKÁ 6, PRAHA 4 – MICHLE

Přímětická 6

3+kk

67

Virtuální prohlídka k dispozici

Popis nemovitosti

Pronájem zrekonstruovaného bytu 3+kk, 67,7 m² | Přímětická 6, Praha 4 – Michle

Nabízíme k pronájmu světlý a velmi příjemný byt 3+kk o výměře 67,7 m², který právě prošel kompletní rekonstrukcí.
V bytě po rekonstrukci ještě nikdo nebydlel - budete první, kdo se nastěhuje.

Byt se nachází ve 4. podlaží udržovaného panelového domu s výtahem.

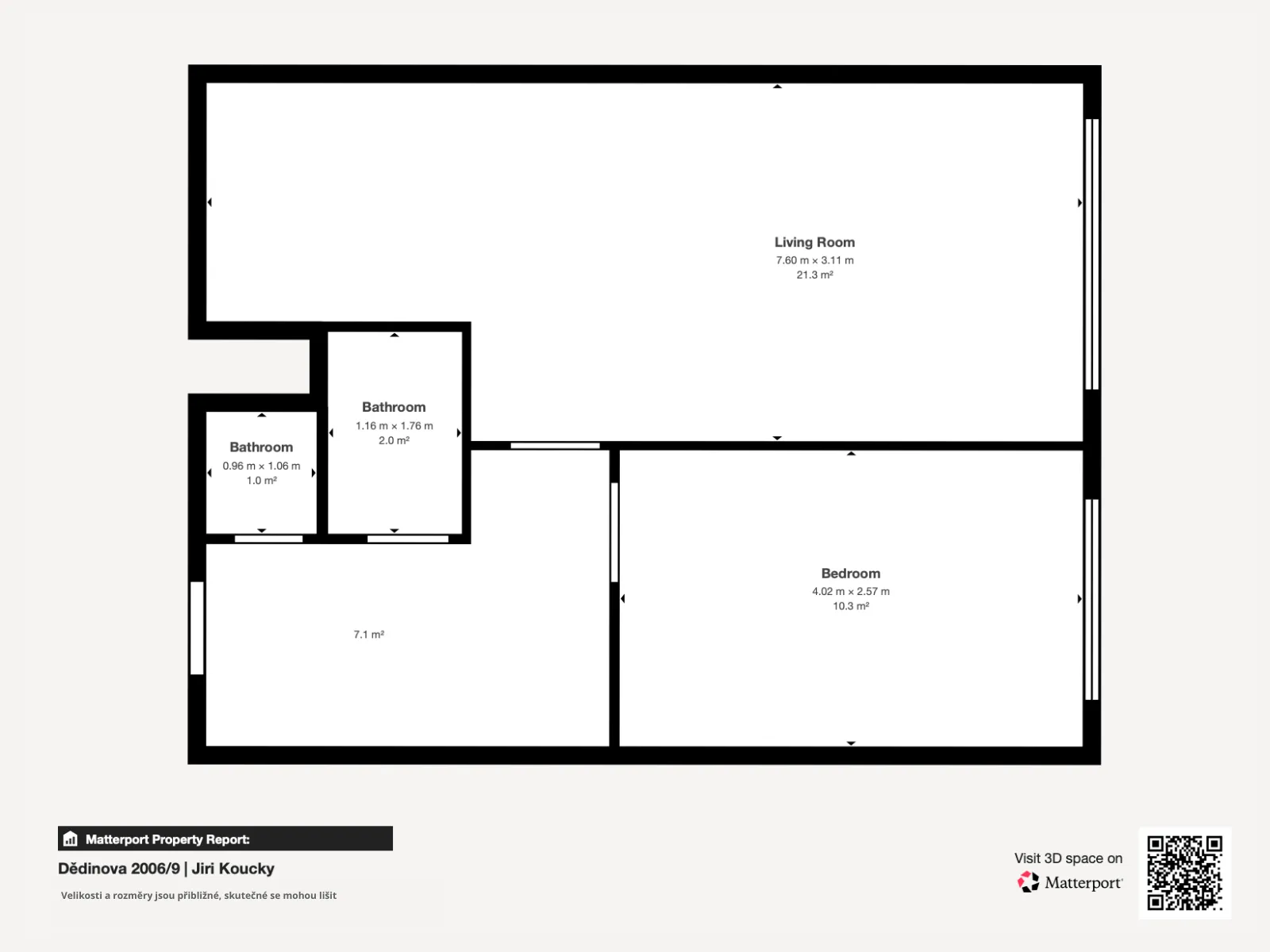
Dispozice

  • obývací pokoj s kuchyňským koutem
  • dvě samostatné ložnice
  • prostorná chodba
  • samostatná šatna - skvělý úložný prostor
  • koupelna se sprchovým koutem a pračkou
  • samostatné WC
  • komora/sklep (cca 1 m²) naproti bytu

Byt je nevybavený a připravený k okamžitému nastěhování.

Vybavení a technický stav

  • nová kuchyňská linka se spotřebiči: trouba, varná deska, myčka, mikrovlnná trouba
  • nové vinylové podlahy
  • nové interiérové dveře, osvětlení, zásuvky a vypínače
  • nová koupelna, sanitární zařízení a moderní povrchy s novou pračkou Beko
  • byt nemá balkon, ale díky praktické dispozici skvěle funguje pro pár, rodinu s jedním dítětem nebo jako 2+kk s pracovnou
  • vytápění: centrální (nájemník hradí zálohy, roční vyúčtování)
  • elektřina: zůstává napsaná na majiteli (nájemník hradí zálohy, roční vyúčtování)

Dům má čisté, pravidelně udržované společné prostory a výtah.
Majitelé vlastní více bytů → byt není určen k prodeji → stabilita pro dlouhodobý pronájem.

K nastěhování: ihned

Jiří Koucký, realitní makléř


Všechny uvedené informace mají pouze orientační charakter a mohou se změnit. Tento inzerát není návrhem na uzavření nájemní smlouvy dle § 1732 občanského zákoníku. Uváděné výměry jsou přibližné. Pronajímatel si vyhrazuje právo upravit podmínky nebo upřednostnit vybraného zájemce.


Perfektní lokalita

Právě zrekonstruovaný byt

O lokalitě

Lokalita - 5 minut od metra Budějovická

Lokalita nabízí vše, co člověk potřebuje pro pohodlné městské bydlení:

  • 5 minut pěšky na metro C - Budějovická
  • u metra OC DBK, supermarkety, restaurace, kavárny, služby a pošta
  • 10 minut pěšky do OC Arkády Pankrác
  • v okolí je dostatek zeleně, dětských hřišť a míst na procházky
  • výborné spojení MHD i autem

Jedná se o skvělou volbu pro každého, kdo chce bydlet v klidné části Prahy 4, ale zároveň mít vše podstatné v pěší vzdálenosti.

V okolí nemovitosti

  • 5 minut chůze od stanice metra Budějovická

Dokumenty ke stažení

25 000 Kč + poplatky za domovní služby + provize

Bydlení je zatím dostupné